interiors and beyond
Home
About
SKI
Suzy Kennedy
Portfolio
Kitchens
Baths
Decorating
Mud and Laundry
Before and After
Furniture
Outdoor Spaces
Recognition
Testimonials
Press
Contact
Furniture
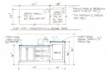
Coffee Bar
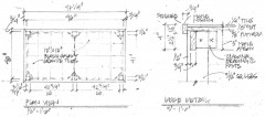
Chinese Storage Cabinets for Bornstein
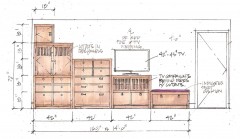
Loft Island Table Design
Dressing Table Design
TV Cabinet
SKI Design Inc
Milford MA, 01757